護籠鋼爬梯


護籠鋼爬梯
護籠鋼爬梯是在鋼直梯的基礎上加上護籠和女兒墻彎頭,表面為熱鍍鋅,梯臂是用60*10的扁鋼絕非角鋼,現在好的客戶以為梯臂國標應該是角鋼那是不對,角鋼也是可以用來做梯臂,上屋面鋼直梯是永久性安裝在建筑物外墻上與水平面成90
護籠鋼爬梯基礎參數
護籠鋼爬梯外形尺寸:寬度都是600mm長度按客戶要求,如果太長要加裝平臺,平臺加裝也要看客戶需求 護籠鋼爬梯表面處理:一般都是熱鍍鋅為國標做法,也可噴漆,冷鍍鋅,不銹鋼選擇拋光 護籠鋼爬梯寬度:默認600mm也可定制 護籠鋼爬梯彎頭:有AC和AB 護籠鋼爬梯護籠:扁鋼護籠為6mm厚用料 護籠鋼爬梯材質:Q235B鐵和不銹鋼201,304,還有鋁合金
護籠鋼爬梯
護籠鋼爬梯選擇
| 代號 | 內容名稱 | 適用范圍 |
|---|---|---|
| WTl | 單段梯無護籠鋼直梯 | 屋面高度< |
| WT2 | 單段梯有護籠鋼直梯 | 7m |
| WT3 | 多段梯有護籠鋼直梯 | 屋面高度》 |
| WT4 | 梯間平臺上屋面鋼直梯 | 從梯問平臺到屋面的高度為2.8-5.8米 |
| WT5 | 天窗端壁上屋面鋼直梯 | 天窗架高度為 |
護籠鋼爬梯材料與制造安裝
上屋百鋼直梯由梯梁、踏棍、支撐、護籠及梯間平臺、欄桿 等構成土墨西鋼直梯按建筑物檐口構造分為三種安裝類型,即 挑檐檐\(a 1200mm型);高度小于等于 600mm 女兒墻( 型);高度 600- 女兒墻( 型) 本圖集專為金屬夾芯板屋面提供了上屋面鋼直梯頂段的 做法。其中包括用于縱向屋面帶挑檐檐口的做法(見Dll 和兩種用于山墻與金屬夾芯板屋面交接處設置鋼直梯時上屋面頂段的構造做法(見頁) D14 D16 以結合工程實際參照安裝頁)。其他壓型金屬板屋面可 鋼直梯采用力學性能不低于 保證的鋼材。焊接應符合《鋼結構工程施工質量驗收規范》GBQ235-B ,并具有碳含量合格 50205 2001 規定的要求 鋼直梯的涂裝要求熱鍍鋅 上屋面鋼直梯的支撐與主體結構的連接由項目設計解決
護籠鋼爬梯設計要點
上屋面鋼直梯分為單段梯和多段梯兩種。當屋面高度小 Om時,可采用單段梯;當屋面高度大于等于 用多段梯。多段梯需設梯問平臺,平臺之間的垂直間距為恤,梯段水平交錯布置lOm 時,應采 本圖集為多段梯提供了兩種寬度的梯間平臺做法,一種是 1800mm寬,人從下邊梯段上來后穿過平臺,稱之為下上式; 另一種是1200mm 寬,下邊梯段位于平臺的側面,稱之為側上 式。梯問平臺的深度也有兩種做法,即 1500mm1500mm 1200mmo 適用于檐口為挑檐;深度 墻。設計時可以酌情選用,在上屋面鋼直梯代號中不體現。1200mm 適用于屋檐為女兒 單段梯的高度大于等于 梯段下端基準面的距離為7m 時,應設置護籠。護籠底部距 3000mmo 當下端基準面為梯問平臺時(即從樓層室內開門到室外 挑臺及設有吊車的車間,從吊車梁的山墻端開門到室外挑臺的),可以選用梯間平臺上屋面鋼直梯本圖集適用于從低屋面上至高屋面的屋面檢修鋼直梯, 即下端基準面也可以是屋面。天窗端壁上屋面鋼直梯也屬于從低屋面上至高屋面的鋼直梯鋼直梯凈寬為 一級踏棍距基準面小于等于600mm ;踏棍垂直間距小子等于 300mm ;第 450mm 在一般條件下,踏棍采用直徑為 60mm lOmm20mm 的因鋼,梯梁采用 扁鋼;潮濕或腐蝕條件下,踏棍采用直徑為 的圓鋼,梯梁采用25mm 60mm 12mm 的扁鋼 護籠為圓形結構,直徑為 1050mm800mmo 護籠頂部應高出屋面 ,并設置欄桿 上屋面鋼直梯由上、中、下段組合構成,分段是為了方 便施工和編制材料表,在選用編號中不體現
護籠鋼爬梯編號及選用方法
天窗端壁上屋面鋼直梯: WT5 - 此例表示用于天窗架高度為3. 25 3. 直梯25m 的天窗端壁上屋面鋼 上屋面鋼直梯:WT 1a -6.6 WT上屋面鋼直梯,1-單段梯無籠,2-單段梯無籠,3-多段梯有籠,4-梯間平臺上屋面,5-天窗端壁上屋面,a-挑檐檐口,b-女兒墻≤600mm,c-女兒墻高>600-1200mm。 此例表示用于屋面高度為6. 屋面鋼直梯60m ,有挑檐屋面的單段上
上屋面WT1 單段梯鋼直梯選用圖

上屋面WT2 單段梯鋼直梯選用圖

上屋面WT3 多段梯下上式鋼直梯選用圖

上屋面WT3 多段梯下上式鋼直梯選用圖

上屋面WT3 多段梯下上式鋼直梯選用圖

WT4梯間平臺上屋面鋼直梯選用圖

WT5 天窗端壁上屋面鋼直梯

上屋面鋼直梯Aal員段詳圖(重型屋面)

上屋面鋼直梯Aal員段詳圖(輕型屋面)

上屋面鋼直梯Ab頂段詳圖(重型屋面)

上屋面鋼直梯Ab 頂段詳圖(輕型屋面)

上屋面鋼直梯Ab頂段詳圖(懸挑式)

上屋面鋼直梯Acl頁段詳圖(重型屋面)

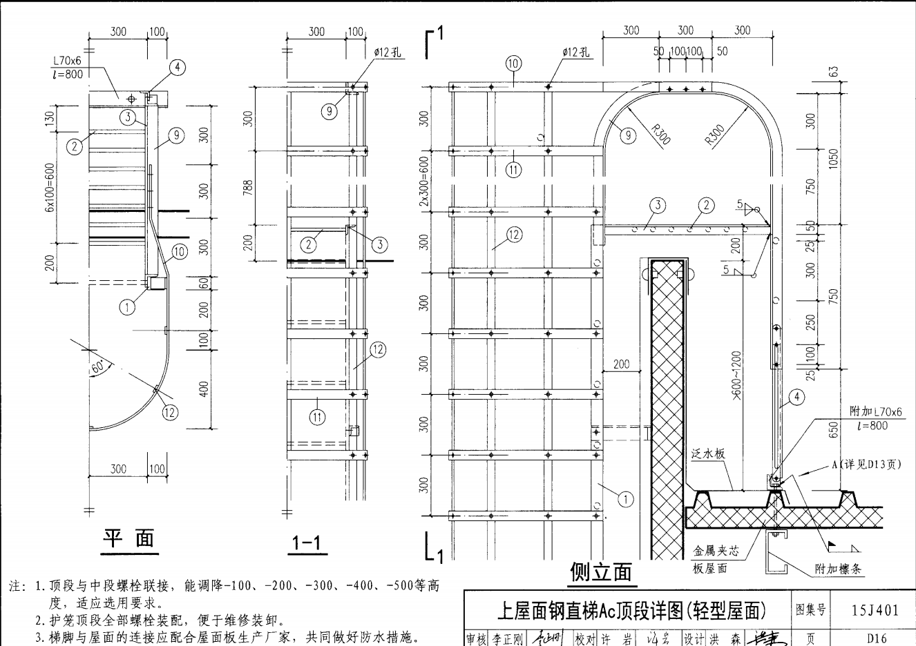
上屋面鋼直梯Ac 頂段詳圖(輕型屋面)

上屋面鋼直梯及護籠詳圖

上屋面鋼直梯B1 B3 中段詳圖

上屋面鋼直梯C1 C3 下段詳圖

上屋面鋼直梯梯間平臺P1 P2 詳圖

上屋面鋼直梯梯間平臺P1 P2 抱柱鋼架結構

上屋面陽 多段梯側上式梯間平臺示意圖

上屋面鋼直梯下上式及側上式梯間平臺

上屋面鋼直梯材料表



